3271.00 m2
3271.00 m2
3271.00 m2
3271.00 m2
3271.00 m2

nyski, Jędrzychów, opolskie

Działka na sprzedaż

1 300 000 PLN

cena za m2 - 397 PLN

Specyfikacja

1 300 000 PLN
Cena
3271.00
Powierzchnia całkowita
własność
Forma własności
możliwość podłączenia
Gaz
Tak
Cena do negocjacji
miejskie
Typ podłączenia wody
brak
Ogrodzenie
miejska
Kanalizacja
budowlana-wielorodzinna
Typ działki
Małgorzata Król

Właściciel/
Pośrednik w obrocie
nieruchomościami/
Expert kredytowy

Poznaj szczegóły oferty

Oferta dla Dewelopera!

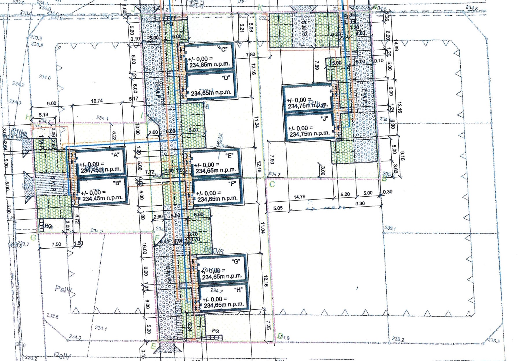
Działka z pozwoleniem na budowę 20 mieszkań (w 5 budynkach 4 lokalowych) o łącznej powierzchni użytkowej mieszkalnej wynoszącej 1322 m2.

Działka o areale 3271 m2 posiada bezpośredni dostęp do drogi publicznej z dwóch stron.

Media:

– prąd na działce,

– woda, kanalizacja, gaz – w drodze tuż przy działce.

Zaprojektowane mieszkania „układają się” w następujący sposób:

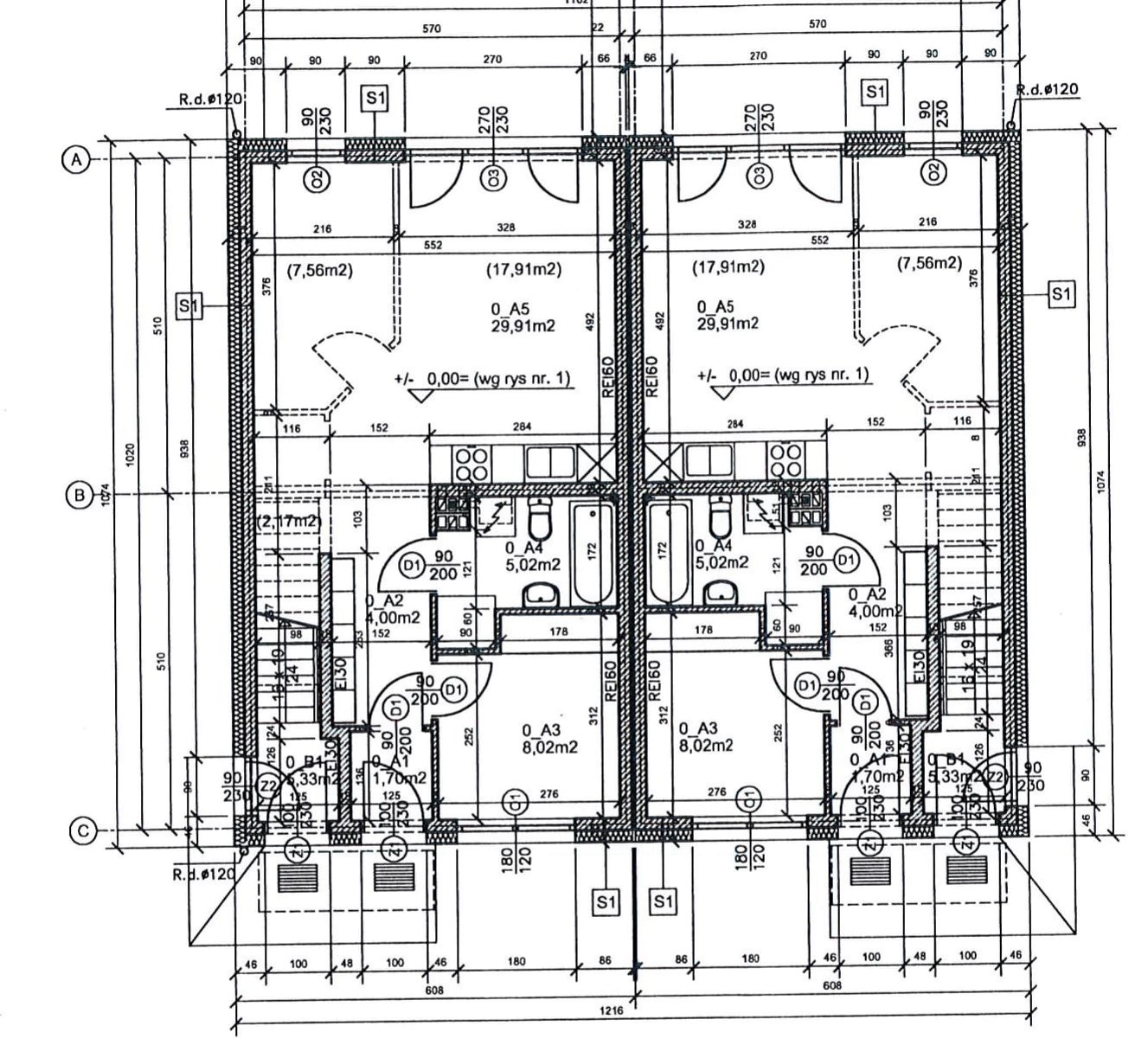
Na parterze znajdują się lokale o powierzchni 48,65 m2 składające się z:

– salonu z kuchnią 29,91 m2,

– sypialni 8,02 m2,

– łazienki 5,02 m2,

– korytarza 5,70 m2.

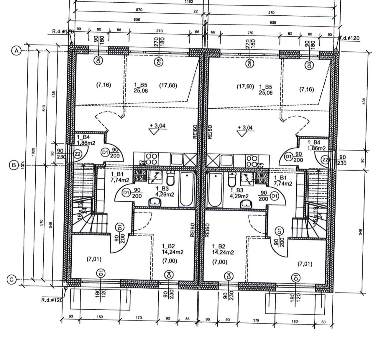
Na piętrze natomiast mamy lokale o powierzchni 83,56 m2, składające się z:

– salonu z kuchnią 25,06 m2,

– sypialni 14,24 m2,

– łazienki 4,29 m2,

– przedpokoju 7,74 m2,

– klatki schodowej,

– antresoli 25,02 m2.

Każdy lokal posiada własny ogródek.

Kupując tą nieruchomość „przeskakujesz” kilka ważnych etapów w procesie budowlanym.

Od razu możesz przystąpić do prac budowlanych, i sądzę w krótszym czasie niż zazwyczaj cieszyć się zyskiem z inwestycji.

Zapraszam zatem do kontaktu.

Polecam!!!

Opis nieruchomości sporządzony został na podstawie oględzin nieruchomości oraz informacji uzyskanych od właściciela,

może podlegać aktualizacji i nie stanowi oferty określonej w art.66 i następnych K.C.

Cena 1 300 000 PLN, POLECAMY!

Pozostałe oferty

Działka, opolski, Murów, Kały, opolskie

Działka na sprzedaż

525 000 PLN

cena za m2 - 35 PLN

15003.00 m2

Działka, opolski, Dąbrowa, Sokolniki, opolskie

Działka na sprzedaż

180 000 PLN

cena za m2 - 120 PLN

1500.00 m2

Działka, opolski, Komprachcice, Wawelno, opolskie

Działka na sprzedaż

180 000 PLN

cena za m2 - 164 PLN

1100.00 m2

Działka, opolski, Dąbrowa, Karczów, opolskie

Działka na sprzedaż

149 400 PLN

cena za m2 - 180 PLN

830.00 m2

Działka, opolski, Dąbrowa, Chróścina, opolskie

Działka na sprzedaż

390 000 PLN

cena za m2 - 83 PLN

4721.00 m2

Działka, opolski, Dąbrowa, Ciepielowice, opolskie

Działka na sprzedaż

282 000 PLN

cena za m2 - 209 PLN

1349.00 m2